首页> 招标询价> 招标公告
招标询价Bidding inquiry
服务热线contact
24小时服务电话
0598-8583101
服务邮箱
fjyjjt@163.com
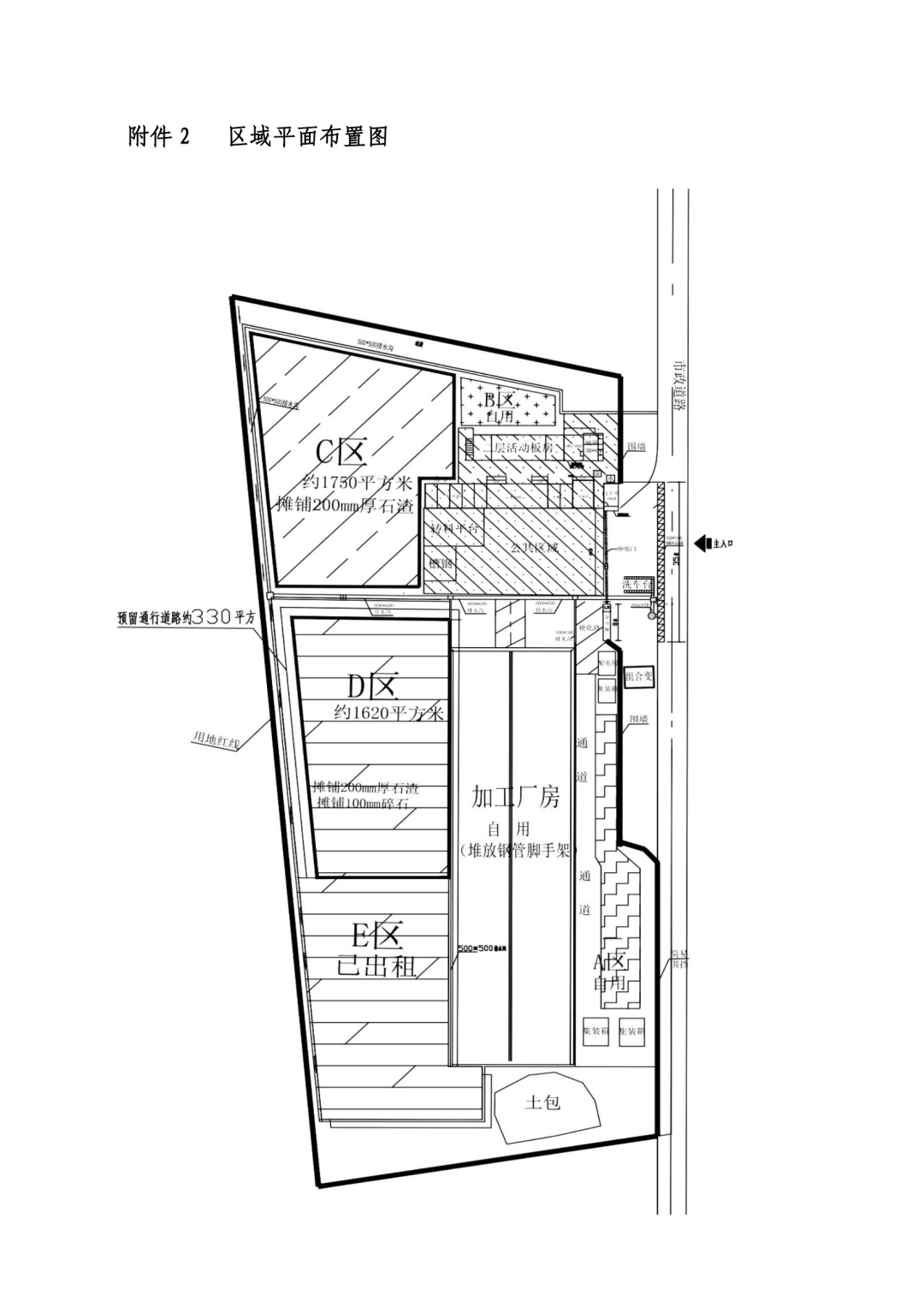
开云手机web版登录入口机械设备维护中心室外场地招租公告
时间:2025-03-28 来源:开云手机web版登录入口集团

1.png

2.png

3.png

4.png

5.png

6.png

地址:福建省三明市三元区新市中路182号8幢 邮编:365001 电话:0598-8583101(总台) 8583109(经营部) 8582321(纪检监察) 传真:0598-8583102 网址:www.artydawgz.com
官方微博 官方微信

手机站

关于我们| 联系我们| 在线留言

Copyright © 开云手机web版登录入口集团有限公司 版权所有 | 闽ICP备14010372号-1  流量统计:47231694

0598-8583101

联系信箱

在线咨询